Achat
Locations
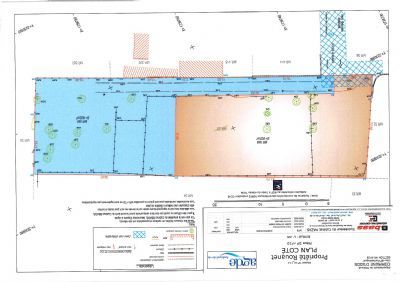
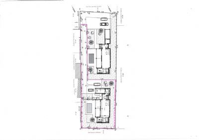
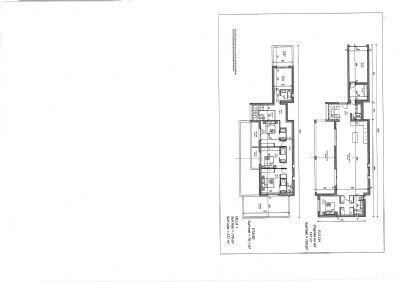
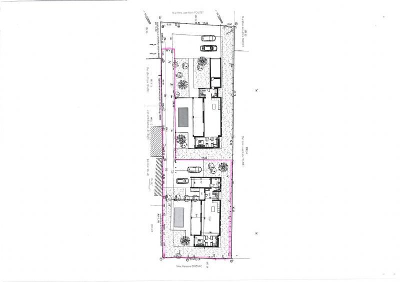
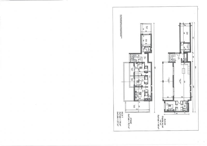
Terrain à bâtir de 802 m² avec PC
Réf : n° 9525
Cap d'agdeTerrain 802,00m²
Prix : 470 000 €
A 100 m de la plage ! Belle parcelle de terrain à bâtir, d'une superficie de 802 m², viabilité en bordure, avec un Permis de Construire délivré et purgé pour construire une villa contemporaine de 180 m² hab avec 4 chambres, séjour/ salon de 60 m², terrasse et garage...
A visiter .
Agence Emeraude Agde
ESPACE 4 M
Boulevard Maurice Pacull, BP 80032
34302 AGDE Cedex
Demande de renseignements
Terrain Cap d'agde 470000 € - Terrain à bâtir de 802 m² avec PC
Copyright 2019, INFOLIEN - Tous droits réservés.
Mentions légales | Données personnelles | Gérer les cookies
Mentions légales | Données personnelles | Gérer les cookies 









